Miejscowość : Jelenia Góra
Położenie :Jelenia Góra-Cieplice
Lokalizacja : ul.Ceglana-Wojewódzka
Konstrukcja : pustak ceramiczny
Stan techniczny : nowy
Powierzchnia użytkowa : 86 m2
Kondygnacja : 2 piętro
Liczba pokoi :3

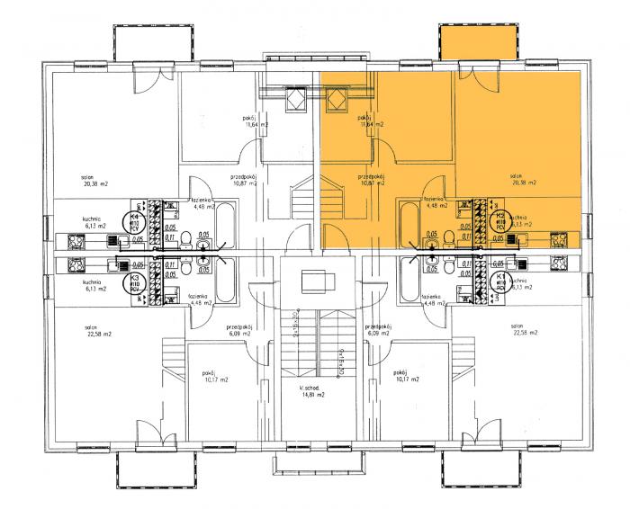
Mieszkanie nr 11 dwupoziomowe z balkonem,piwnicą i miejscem parkingowym

Cena:

0

Mieszkanie znajduje się w budynku 12 rodzinnym na drugim piętrze (dwupoziomowe) z balkonem,piwnicą i miejscem parkingowym.

Ogrzewanie gazowe niezależne (piec dwufunkcyjny)

Mieszkanie zostanie oddane do zamieszkania w stanie developerskim.

Możliwość wykonania ścian działowych według własnej koncepcji ( na życzenie klienta).

Zobacz rzut antresoli (Mansarda) wejdź w zakładkę GALERIA !!

Mieszkanie nr 11 :: 85.97m2 z balkonem piwnicą i miejscem postojowym.

zobacz rzut  poddasza (Mansarda) wejdż w zakładkę GALERIA !!

 

  • piwnica  5 m2
  • salon 20,38 m2
  • przedpokój 10,87 m
  • pokój 11,64 m 
  • pokój poddase (Mansarda) 32,47m2
  • kuchnia 6,13m
  • łazienka 4,48 m

     

     

     

     

     

     

  •