Miejscowość : Jelenia Góra
Położenie :Jelenia Góra-Cieplice
Lokalizacja : ul.Ceglana-Wojewódzka
Konstrukcja : pustak ceramiczny
Stan techniczny : nowy
Powierzchnia użytkowa : 57 m2
Powierzchnia działki : 4769 m2
Kondygnacja : 1 piętro
Liczba pokoi :3

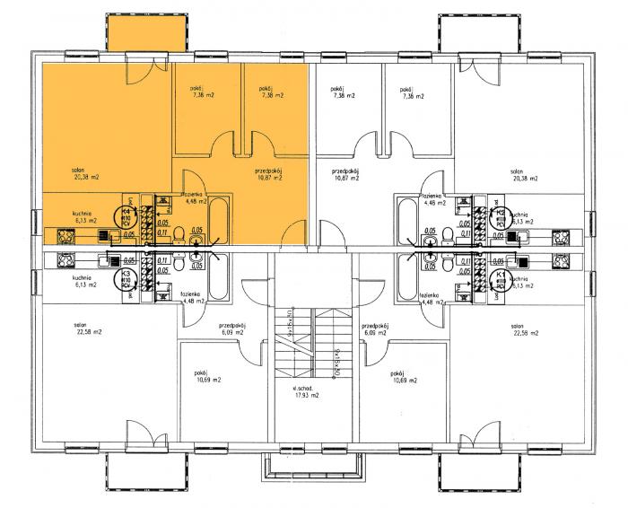
Mieszkanie nr 6 z balkonem,piwnicą i miejscem parkingowym

Cena:

0

Mieszkanie znajduje się w budynku 12 rodzinnym na pierwszym piętrze z balkonem piwnicą i miejscem postojowym.
Mieszkanie zostanie oddane do zamieszkania w  stanie developerskim.
Ogrzewanie gazowe niezależne (piec dwufunkcyjny)

Możliwość wykonania ścian działowych według własnej koncepcji (na życzenie klienta)

Mieszkanie nr 6.  56.62 m2- z balkonem piwnicą i miejscem postojowym.

 

 

  • piwnica  5 m2
  • salon 20,38 m2
  • przedpokój 10,87 m2
  • pokój 7,38 m2
  • pokój 7,38 m2 
  • kuchnia 6,13 m2
  • łazienka 4,48 m2

     

     

     

  •