KARKONOSKA IDYLLA
mieszkania jelenia góra : Jelenia Góra - - Mieszkanie nr 6 (wejscie na wprost) z balkonem i miejscem parkingowym
Brak zainstalowanej wymaganej wtyczki flash

pobierz plugin flash
|  ‹
		strona główna ›
		Budynek A ›
		Jelenia Góra ul.Ceglana-Wojewódzka |  drukuj | 
| Miejscowość : | Jelenia Góra | 
| Położenie : | Jelenia Góra-Cieplice | 
| Lokalizacja : | ul.Ceglana-Wojewódzka | 
| Konstrukcja : | pustak ceramiczny | 
| Stan techniczny : | nowy | 
| Powierzchnia użytkowa : | 57 m2 | 
| Kondygnacja : | 1 piętro | 
| Liczba pokoi : | 3 | 
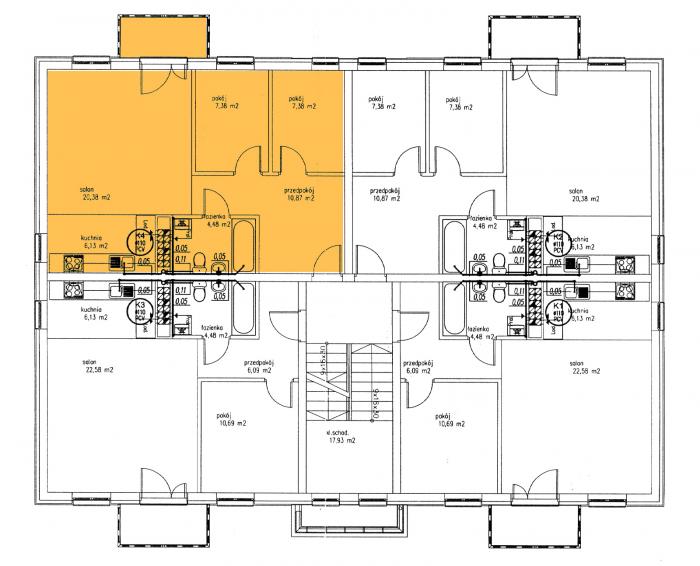
Mieszkanie nr 6 (wejscie na wprost) z balkonem i miejscem parkingowym
Mieszkanie znajduje się w budynku12 rodzinnym na pierwszym piętrze z balkonem  i miejscem postojowym.
Mieszkanie zostanie oddane do zamieszkania w stanie developerskim. 
Ogrzewanie gazowe niezależne(piec dwufunkcyjny).
Możliwość wykonania ścian działowych według własnej koncepcji (na życzenie klienta).
Mieszkanie nr 6 :: 56,62 m2- z balkonem i miejscem postojowym.
| 
 |  | 

 dodaj do obserwowanych
	dodaj do obserwowanych