KARKONOSKA IDYLLA
mieszkania jelenia góra : Jelenia Góra - - Mieszkanie nr 5 (wejście na lewo) z balkonem,piwnicą i miejscem parkingowym
Brak zainstalowanej wymaganej wtyczki flash

pobierz plugin flash
|  ‹
		strona główna ›
		Budynek B ›
		Jelenia Góra ul.Ceglana-Wojewódzka |  drukuj | 
| Miejscowość : | Jelenia Góra | 
| Położenie : | Jelenia Góra-Cieplice | 
| Lokalizacja : | ul.Ceglana-Wojewódzka | 
| Konstrukcja : | pustak ceramiczny | 
| Powierzchnia użytkowa : | 50 m2 | 
| Kondygnacja : | 1 piętro | 
| Liczba pokoi : | 2 | 
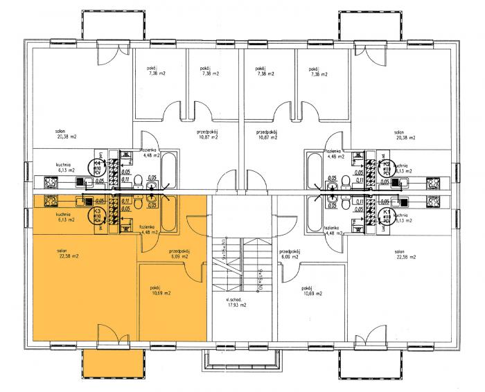
Mieszkanie nr 5 (wejście na lewo) z balkonem,piwnicą i miejscem parkingowym
Mieszkanie znajduje się w budynku 12 rodzinnym na pierwszym piętrze z balkonem piwnicą i miejscem postojowym.
Mieszkanie zostanie oddane do zamieszkania w stanie developerskim.
Ogrzewanie gazowe niezależne (piec dwufunkcyjny)
Możliwość wykonania ścian działowych według własnej koncepcji (na życzenie klienta)
Mieszkanie nr 5 (wejście z klatki schodowej na lewo) 49,97m2 - z balkonem piwnicą i miejscem postojowym.
| 
 |  | 

 dodaj do obserwowanych
	dodaj do obserwowanych