KARKONOSKA IDYLLA
mieszkania jelenia góra : Jelenia Góra - - Mieszkanie nr 2 z tarasem ogrodowym od. 20 m2,piwnicą i miejscem parkingowym
Brak zainstalowanej wymaganej wtyczki flash

pobierz plugin flash
|
|
drukuj
|
| Miejscowość : | Jelenia Góra |
| Położenie : | Jelenia Góra-Cieplice |
| Lokalizacja : | ul.Ceglana-Wojewódzka |
| Konstrukcja : | pustak ceramiczny |
| Stan techniczny : | nowy |
| Powierzchnia użytkowa : | 57 m2 |
| Kondygnacja : | parter |
| Liczba pokoi : | 3 |
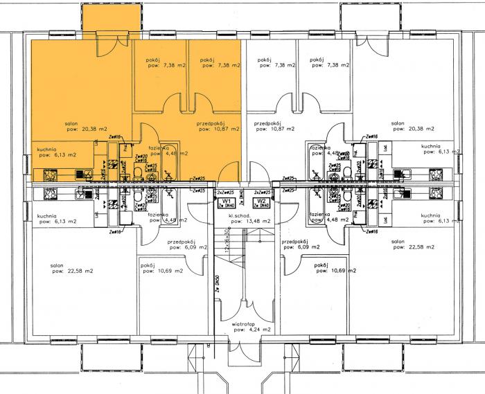
Mieszkanie nr 2 z tarasem ogrodowym od. 20 m2,piwnicą i miejscem parkingowym
Mieszkanie znajduje się w budynku 12 rodzinnym na parterze z tarasem ogrodowym od.20m2. Mieszkanie zostanie oddane do zamieszkania w stanie developerskim
Ogrzewanie gazowe niezależne (piec dwufunkcyjny).
Możliwość wykonania ścian działowych według własnej koncepcji (na życzenie klienta).
Mieszkanie nr 2:: 56,62 m2 z tarasem ogrodowym ok 20 m2 i miejscem postojowym.
|
|


dodaj do obserwowanych