KARKONOSKA IDYLLA
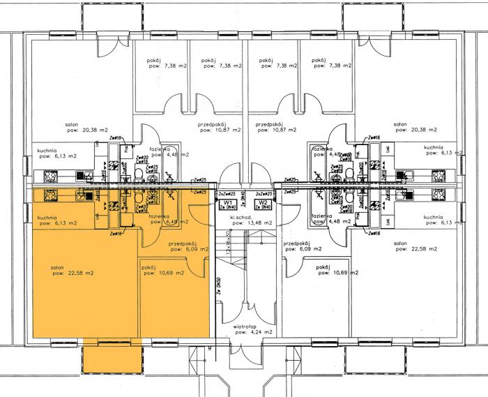
mieszkania jelenia góra : Jelenia Góra - - Mieszkanie nr 1 (wejście na lewo) z balkonem,piwnicą i miejscem parkingowym
Brak zainstalowanej wymaganej wtyczki flash

pobierz plugin flash
|
|
drukuj
|
| Miejscowość : | Jelenia Góra |
| Położenie : | Jelenia Góra-Cieplice |
| Lokalizacja : | ul.Ceglana-Wojewódzka |
| Konstrukcja : | pustak ceramiczny |
| Stan techniczny : | nowy |
| Powierzchnia użytkowa : | 50 m2 |
| Kondygnacja : | parter |
| Liczba pokoi : | 2 |
Mieszkanie nr 1 (wejście na lewo) z balkonem,piwnicą i miejscem parkingowym
Mieszkanie znajduje się w budynku 12 rodzinnym na parterze z balkonem i miejscem postojowym. Mieszkanie zostanie oddane do zamieszkania w stanie developerskim
Ogrzewanie gazowe niezależne (piec dwufunkcyjny).
Możliwość wykonania ścian działowych według własnej koncepcji (na życzenie klienta).
Mieszkanie nr 1 (wejście z klatki schodowej na lewo) 49,97m2 z balkonem i miejscem postojowym.
|
|


dodaj do obserwowanych